This 3 BHK Modern Contemporary house plan blends modern aesthetics with practical living. Designed with a clean architectural profile and efficient layout, it delivers comfort without wasted space. The sloped roof design enhances both exterior appeal and interior volume.
With a total built-up area of approximately 1,254 sq ft, this home is ideal for small to mid-sized families who want a balance of openness and privacy. The integration of a central great room, compact kitchen, and private bedroom zones makes it highly functional, giving you the perfect ambiance of a dream home.

Key Highlights:
- Total Area: 1,254 sq ft
- Stories: Single-story
- Bedrooms: 3
- Bathrooms: 2
- Kitchen: 1 (with pantry)
- Living Area: Great Room
- Garage: 1-car garage
REVERSE-ENGINEERED BLUEPRINT ANALYSIS

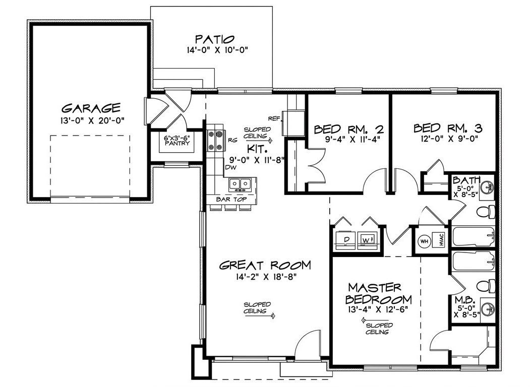
The layout is anchored by a centrally positioned Great Room, which acts as the main social hub. This open space connects seamlessly to the kitchen, creating a fluid living-dining experience.
The kitchen sits adjacent to the patio, enabling easy indoor-outdoor interaction—ideal for casual dining or entertaining. A compact pantry enhances storage efficiency without consuming excess space.
Bedrooms are intelligently zoned:
- Master bedroom is placed on one side for privacy, complete with an attached bath.
- Bedrooms 2 and 3 are grouped together with a shared bathroom, making them perfect for kids or guests.
Functional spaces like the garage connection and pantry improve day-to-day usability without cluttering the layout.
ELEVATIONS AND EXTERIOR VIEWS
Front Elevation

The front façade showcases a bold contemporary look with dark brick cladding and warm wooden accents. The sloped roofline creates a dynamic visual profile, while large windows add transparency.
Left Side Elevation

The garage massing is clearly visible on the left, slightly offset from the main structure. Clean lines and minimal openings maintain a modern, uncluttered look.
Right Side Elevation

This side emphasizes horizontal proportions with strategically placed windows for bedrooms, ensuring privacy while maintaining natural light.
Rear Elevation

The rear connects directly to the patio, making it ideal for outdoor relaxation. The integration of indoor and outdoor spaces enhances usability.
Top View (Aerial Perspective)

From above, the angular roof geometry stands out. The layout clearly separates public and private zones while maintaining compact efficiency.
WHY CHOOSE THIS 3 BHK CONTEMPORARY HOUSE?

This house is ideal for:
- Small to medium families
- First-time homeowners
- People who prefer low-maintenance modern homes
Benefits:
- Efficient use of space (no wasted corridors)
- Clear zoning for privacy
- Open-plan living enhances spaciousness
- Affordable construction compared to larger homes
DETAILED FLOOR PLAN BREAKDOWN (MANDATORY)
| Room | Dimensions | Description |
|---|---|---|
| Garage | 13′ x 20′ | Single-car garage with direct house access |
| Patio | 14′ x 10′ | Outdoor relaxation and entertainment space |
| Kitchen | 9′ x 11′-8″ | Compact, efficient kitchen with bar seating |
| Pantry | 6′ x 3′-6″ | Storage for groceries and essentials |
| Great Room | 14′-2″ x 18′-8″ | Main living and gathering area with open layout |
| Bedroom 2 | 9′-4″ x 11′-4″ | Ideal for kids or guests |
| Bedroom 3 | 12′ x 9′ | Flexible use as bedroom or office |
| Common Bath | 5′ x 8′-5″ | Shared bathroom for secondary bedrooms |
| Master Bedroom | 13′-4″ x 12′-6″ | Spacious private bedroom |
| Master Bath | 5′ x 8′-5″ | Attached bathroom for master suite |
APPROXIMATE CONSTRUCTION COST IN THE USA
Construction costs vary significantly depending on location, labor rates, and material availability across the U.S. Construction in high-cost states can be 1.5x to 2x more expensive than in affordable regions.
WHY COSTS VARY:
- Labor cost differences
- Material availability
- Local permits and regulations
- Demand in housing market
- Climate and site conditions
1. Affordable States (Texas, Oklahoma, Tennessee)
- Cost per sq ft: $120 – $150
- Estimated Cost: $150,480 – $188,100
2. Mid-Range States (Florida, Pennsylvania, Arizona)
- Cost per sq ft: $150 – $200
- Estimated Cost: $188,100 – $250,800
3. Expensive States (California, New York, Washington)
- Cost per sq ft: $200 – $300
- Estimated Cost: $250,800 – $376,200
Cost Optimization Tips:
- Use locally sourced materials
- Simplify roof geometry
- Opt for standard-size windows/doors
- Reduce custom finishes
- Plan efficient HVAC and plumbing layouts
KEY ARCHITECTURAL FEATURES
- Open Floor Plan: Seamless connection between kitchen and living
- Sloped Ceiling Design: Enhances interior volume and aesthetics
- Natural Lighting: Large windows maximize daylight
- Outdoor Patio: Extends living space outdoors
- Compact Garage: Functional and space-efficient
- Modern Material Palette: Dark brick + wood accents for contrast
FREQUENTLY ASKED QUESTIONS (SEO BOOST)
1. What is the best feature of this house style?
The open great room combined with a sloped ceiling creates a spacious and modern living experience.
2. Is 1,254 sq ft enough for a family?
Yes, it comfortably accommodates a small to mid-sized family with efficient space planning.
3. What are the pros and cons of an open layout?
Pros: Better light, spacious feel, social interaction
Cons: Less privacy, noise travels easily
4. How long does construction take?
Typically 6–10 months depending on location and contractor efficiency.
Follow us on Facebook for recent videos.
This 3 BHK Modern Contemporary house plan (1,254 sq ft) is a well-balanced design that prioritizes efficiency, comfort, and modern aesthetics. The smart zoning, open living space, and compact footprint make it a strong choice for practical homeowners. If you’re looking for a stylish yet functional home design that doesn’t overshoot your budget, this plan delivers excellent value.