1 BHK Contemporary Ranch House – 1381 Sq Ft Design with Spacious Living Room and 2-Car Garage

1 BHK Contemporary Ranch House

This contemporary ranch-style 1 BHK house is the perfect combination of style, functionality, and comfort. Designed with modern elements and spacious interiors, this house plan ensures ample living space while remaining efficient and practical. With a total area of 1381 sq ft, it’s ideal for anyone looking for a compact yet comfortable home.

Whether you’re just starting your family, retiring, or simply looking for a minimalist approach to living, this house plan offers a seamless flow between rooms, creating a cozy and welcoming environment. Featuring a spacious living room, a modern kitchen, and a well-sized 2-car garage, this plan ensures all your daily needs are met in an efficient design, giving you the perfect ambiance of a dream home.

Exploded Axonometric View Contemporary Ranch House
Exploded Axonometric View Contemporary Ranch House

Key Features:

  • Total Area: 1381 sq ft
  • Stories: Single-story
  • Bedrooms: 1
  • Bathrooms: 1
  • Kitchen: 1
  • Living Area: Spacious open concept
  • Garage: 2-car garage

REVERSE-ENGINEERED BLUEPRINT ANALYSIS

Flow and Functionality:

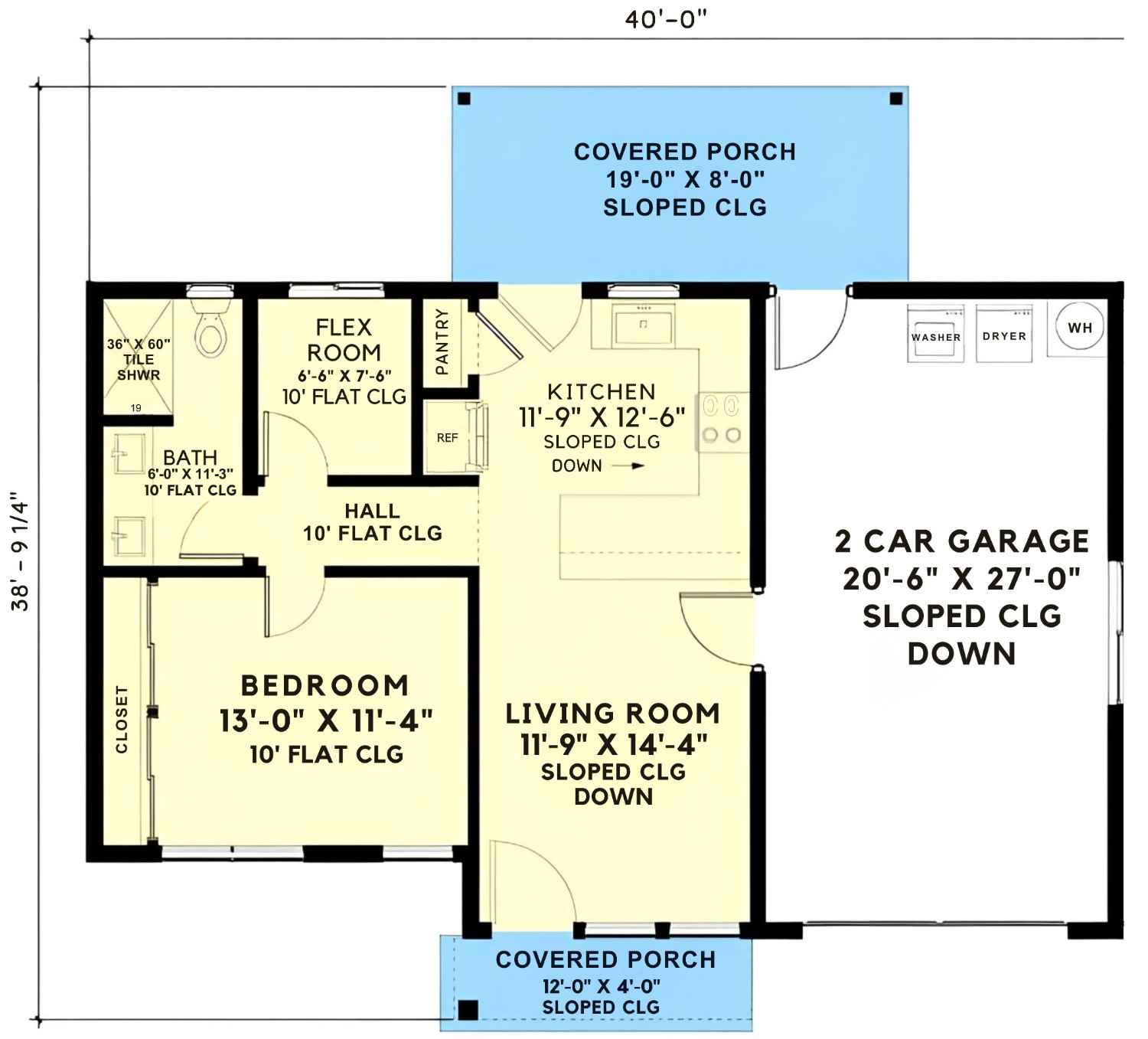
Blueprint of Contemporary Ranch House
Blueprint of Contemporary Ranch House

This layout works by centering the living room as the heart of the home, connecting seamlessly with the kitchen and the rest of the house. The living room provides a wide-open space for relaxation, while the kitchen is located just adjacent, ensuring smooth flow between cooking and entertaining areas. The bedroom is placed at the far end, offering privacy from shared spaces. A flex room allows for various uses, from a home office to a guest room.

3D View of the Floor Plan
3D View of the Floor Plan

The design also includes essential spaces like a pantry next to the kitchen for easy access and a bathroom near the living area for convenience. This layout maximizes the usable space while ensuring comfort.


ELEVATIONS AND EXTERIOR VIEWS

Front Elevation:

Front Elevation
Front Elevation

The front elevation is marked by a sleek modern design, with clean lines and large windows that allow natural light to flood the interiors. The roofline is a sharp, angular style that adds to the contemporary aesthetic, while the large garage door blends seamlessly with the overall design. The covered porch adds a welcoming touch, perfect for outdoor relaxation.

Left Side Elevation:

Left Side Elevation
Left Side Elevation

The left side features a modest, well-balanced view with a continuation of the modern design. The window placement ensures privacy while maintaining a connection to the outside world.

Right Side Elevation:

Right Side Elevation
Right Side Elevation

On the right, the garage and living areas are well-defined, with well-positioned windows for natural lighting. The side elevation complements the overall structure, enhancing the home’s modern charm.

Rear Elevation:

Rear Elevation
Rear Elevation

The rear elevation shows off the covered porch area and a clean, minimalist approach to exterior design. The backyard area is large enough to enjoy outdoor activities and can easily be customized to meet your needs.

Top View (Aerial Perspective):

Aerial View of the House
Aerial View of the House

From an aerial view, the house’s design comes together beautifully. The structure features a balanced roofline with clear demarcations for each room. The two-car garage is positioned towards the right, with the front porch giving access to the main living area.


WHY CHOOSE THIS 1 BHK CONTEMPORARY RANCH?

This 1 BHK contemporary ranch house is ideal for individuals or small families looking for an efficient and stylish living space. The open floor plan enhances the sense of space while ensuring that each room serves a functional purpose. The 2-car garage adds value for homeowners with vehicles, while the design maintains a high level of energy efficiency and privacy.

Perfect for those looking to downsize or who prefer a minimalist lifestyle, this home is designed for practicality, comfort, and a seamless indoor-outdoor connection.


DETAILED FLOOR PLAN BREAKDOWN

Room Dimensions Description
Bedroom 13′-0″ x 11′-4″ Spacious room with ample closet space
Flex Room 6′-6″ x 7′-6″ Multi-purpose space, ideal for office or guest
Kitchen 11′-9″ x 12′-6″ Modern kitchen with efficient layout
Living Room 11′-9″ x 14′-4″ Open, bright space for family activities
Garage 20′-6″ x 27′-0″ Large 2-car garage with ample storage space
Covered Porch 12′-0″ x 4′-0″ Small, welcoming porch area
Covered Porch (Front) 19′-0″ x 8′-0″ Spacious front porch for relaxation
Hallway 6′ x 6′ Passage connecting the living and bedroom areas
Pantry 6′-0″ x 3′-0″ Handy storage space adjacent to the kitchen
Bath 6′-0″ x 10′-3″ Full bathroom for the house

APPROXIMATE CONSTRUCTION COST IN THE USA

Construction costs vary significantly across different regions in the U.S., influenced by local labor rates, material availability, and demand. Let’s look at estimated costs in different states for this 1 BHK contemporary ranch house.

WHY COSTS VARY:

  • Labor: Varies by region and availability of skilled workers.
  • Materials: Cost fluctuates with local supply chains.
  • Permits: Different areas require different permits and inspections.
  • Location Demand: High-demand states lead to higher costs.
  • Climate/Site Conditions: More challenging climates or landscapes can increase costs.

Cost Breakdown:

1. Affordable States (Texas, Oklahoma, Tennessee)

  • Cost per sq ft: $100
  • Total estimated cost: $138,183

2. Mid-Range States (Florida, Pennsylvania, Arizona)

  • Cost per sq ft: $150
  • Total estimated cost: $207,275

3. Expensive States (California, New York, Washington)

  • Cost per sq ft: $250
  • Total estimated cost: $345,458

Key Insight:

Construction costs can vary up to 2x based on location.

Cost Optimization Tips:

  1. Choose affordable materials without sacrificing durability.
  2. Build during off-seasons to reduce labor costs.
  3. Consider prefab or modular options for faster construction.
  4. Work with local contractors to negotiate better pricing.
  5. Be mindful of building regulations and permits to avoid extra costs.

KEY ARCHITECTURAL FEATURES

  • Open Floor Plan: Maximizes space and flow between living areas.
  • Ceiling Design: Sloped ceilings create an airy, expansive feel.
  • Natural Lighting: Large windows enhance daylight and warmth.
  • Outdoor Spaces: Spacious front and rear porches for outdoor living.
  • Garage Functionality: Practical, spacious 2-car garage for storage and parking.

FREQUENTLY ASKED QUESTIONS

1. Best feature of this house style?

The open floor plan and functional design create an efficient and comfortable living space.

2. Ideal square footage?

1381 sq ft is ideal for a small family or someone looking to downsize.

3. Pros & cons of open layout?

Pros: Maximizes space and enhances flow.
Cons: Less privacy between rooms.

4. Construction timeline?

Typically 6-12 months depending on location and contractor.

Follow us on Facebook for recent videos.


This 1 BHK contemporary ranch house is the ideal choice for anyone looking for a blend of modern design, functional spaces, and efficient use of square footage. Whether you’re starting a family or downsizing, this home offers comfort, style, and practicality. The combination of a large garage, open living areas, and cozy bedroom makes it a perfect fit for a variety of lifestyles.

Previous Article

Contemporary 3 BHK Ranch House – Approx. 3,200 Sq Ft Design with 3-Car Garage & Open Living Concept

Next Article

3 BHK Modern Ranch House – 3528 Sq Ft Design with Covered Patio & Open Living Layout

Write a Comment

Leave a Comment

Your email address will not be published. Required fields are marked *

Subscribe to Mission Dream House

Subscribe to Mission Dream House’s newsletter and get the latest home design tips, house plans, and more, delivered directly to your inbox.
Mission Dream House 🏡