Modern Farmhouse 3 BHK House – 3330 Sq Ft Design with Open Layout & 3-Car Garage

Modern Farmhouse 3 BHK

This Modern Farmhouse 3 BHK house plan blends classic rural charm with contemporary functionality. Designed with clean lines, a welcoming front porch, and a highly efficient floor plan, it offers a perfect balance between comfort and practicality.

With a total built-up area of approximately 3330 sq ft, this home is ideal for families looking for spacious living, seamless indoor-outdoor connectivity, and modern amenities. The open-concept layout ensures natural flow, while private bedroom zoning enhances livability.

This home design focuses on usability, every square foot is thoughtfully planned to maximize convenience and lifestyle quality, giving you comfort to create the perfect ambiance of a dream home.

Exploded Axonometric View of the Farmhouse
Exploded Axonometric View of the Farmhouse

Key Highlights:

  • Total Area: 3330 sq ft
  • Stories: 1 (with bonus potential above garage)
  • Bedrooms: 3
  • Bathrooms: 2 + additional utility spaces
  • Kitchen: Large island kitchen with pantry
  • Living Area: Spacious Great Room
  • Garage: 3-Car Garage

REVERSE-ENGINEERED BLUEPRINT ANALYSIS

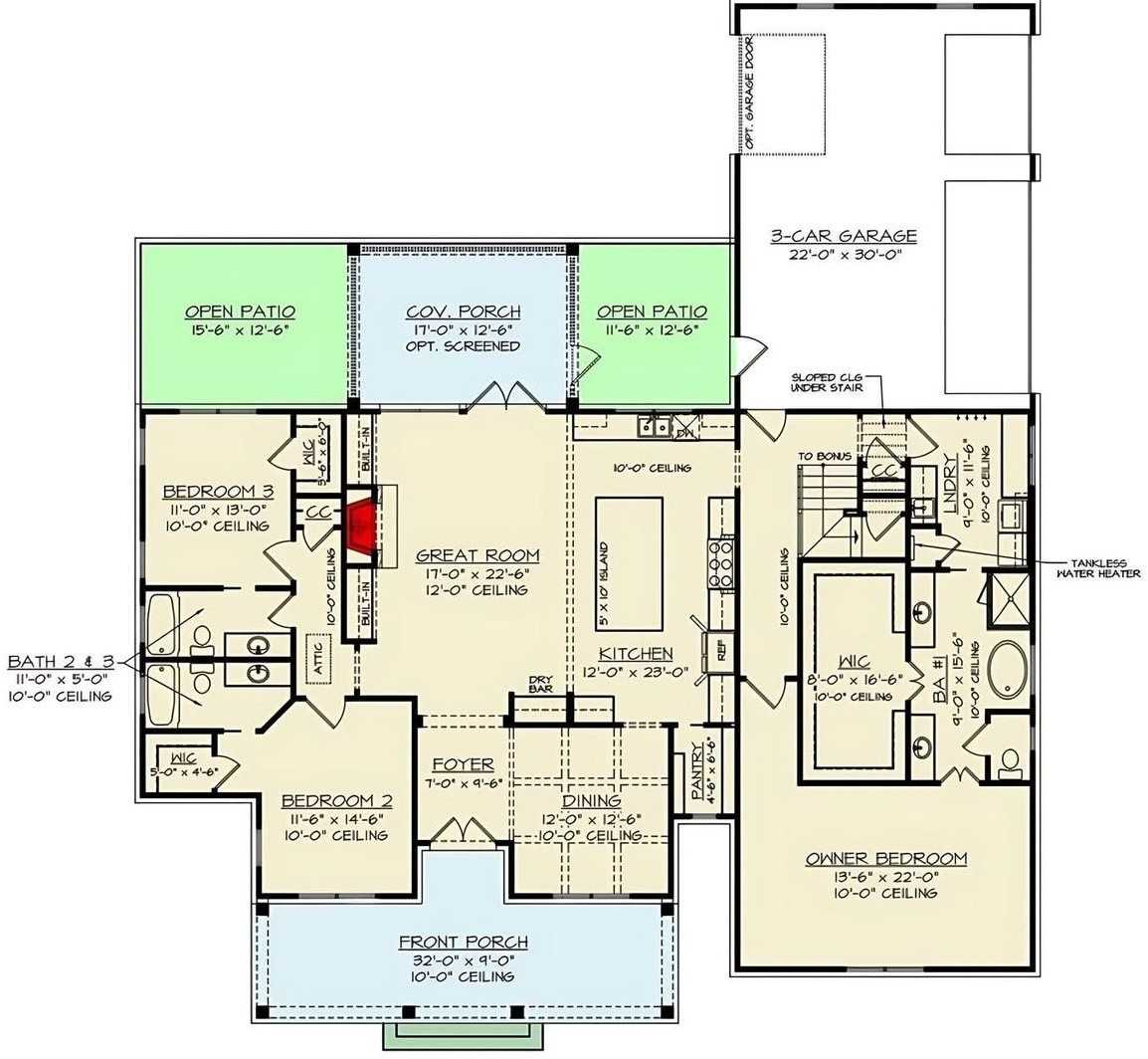
Blueprint of the Modern Farmhouse
Blueprint of the Modern Farmhouse 3 BHK

At the heart of this floor plan is the Great Room (17′ x 22′-6″), acting as the central hub. It connects directly to the kitchen and dining, creating a cohesive open living zone, ideal for gatherings and daily life.

The kitchen (12′ x 23′) is elongated and efficient, featuring a large island and direct access to the pantry and garage. This improves workflow and reduces unnecessary movement.

Smart Zoning:

  • Left Wing: Bedrooms 2 & 3 with shared bath (perfect for kids/guests)
  • Right Wing: Private Owner’s Suite with walk-in closet and luxury bath
  • Center: Social spaces (Great Room, Dining, Kitchen)

Outdoor integration is strong, with:

  • Covered porch
  • Dual open patios
  • Front porch entry sequence

This layout prioritizes privacy + openness simultaneously, which is a hallmark of modern farmhouse design.


ELEVATIONS AND EXTERIOR VIEWS

Front Elevation

Front Elevation
Front Elevation

The house features a symmetrical farmhouse façade with a wide covered porch, gable rooflines, and warm lighting accents. The combination of siding and stone base enhances visual depth and curb appeal.

Left Side Elevation

Left Side Elevation
Left Side Elevation

This side showcases secondary bedrooms with well-placed windows, ensuring natural light while maintaining privacy.

Right Side Elevation

Right Side Elevation
Right Side Elevation

Dominated by the 3-car garage, this side balances utility with aesthetics through roof layering and clean lines.

Rear Elevation

Rear Elevation
Rear Elevation

The rear highlights dual open patios and a covered porch, creating strong indoor-outdoor connectivity, perfect for relaxation or entertaining.

Top View (Aerial Perspective)

Aerial View of the Farmhouse
Aerial View of the Farmhouse

From above, the layout reveals a rectangular footprint with balanced extensions, clearly separating living, sleeping, and service zones.


WHY CHOOSE THIS 3 BHK MODERN FARMHOUSE?

3D View of the Floor Plan
3D View of the Floor Plan

This home is ideal for:

  • Families seeking single-level living
  • Homeowners wanting open-concept design
  • Those needing garage + storage flexibility
  • Buyers who value outdoor living spaces

Lifestyle Benefits:

  • Easy movement across spaces
  • Strong natural lighting
  • Functional zoning for privacy
  • Future expansion potential (bonus room)

DETAILED FLOOR PLAN BREAKDOWN

Room Dimensions Description
Open Patio (Left) 15′-6″ x 12′-6″ Outdoor seating/relaxation area
Covered Porch (Rear) 17′-0″ x 12′-6″ Shaded outdoor living space
Open Patio (Right) 11′-6″ x 12′-6″ Additional outdoor extension
3-Car Garage 22′-0″ x 30′-0″ Spacious parking and storage
Bedroom 3 11′-0″ x 13′-0″ Guest/secondary bedroom
Bath 2 & 3 11′-0″ x 5′-0″ Shared bathroom
WIC (Bedroom Area) 5′-0″ x 4′-6″ Closet/storage
Bedroom 2 11′-6″ x 14′-6″ Secondary bedroom
Foyer 7′-0″ x 4′-6″ Entry transition space
Dining 12′-0″ x 12′-6″ Central dining area
Front Porch 32′-0″ x 9′-0″ Main entrance porch
Great Room 17′-0″ x 22′-6″ Main living space
Kitchen 12′-0″ x 23′-0″ Open kitchen with island
Pantry 4′-6″ x 8′-0″ Storage for kitchen essentials
Owner’s WIC 8′-0″ x 16′-6″ Large walk-in closet
Owner’s Bath 9′-0″ x 15′-6″ Master bathroom
Owner Bedroom 13′-6″ x 22′-0″ Primary bedroom

APPROXIMATE CONSTRUCTION COST IN THE USA

Construction costs vary significantly depending on region, labor availability, and material pricing.

WHY COSTS VARY:

  • Labor rates
  • Material availability
  • Local permits & regulations
  • Demand in housing market
  • Climate & land conditions

1. Affordable States (Texas, Oklahoma, Tennessee)

  • Cost per sq ft: $120–$150
  • Estimated Cost: $399,600 – $499,500

2. Mid-Range States (Florida, Pennsylvania, Arizona)

  • Cost per sq ft: $150–$200
  • Estimated Cost: $499,500 – $666,000

3. Expensive States (California, New York, Washington)

  • Cost per sq ft: $200–$300
  • Estimated Cost: $666,000 – $999,000

Key Insight

Construction costs can vary 1.5x to 2x depending on location.


Cost Optimization Tips:

  • Simplify roof design
  • Use local materials
  • Opt for standard finishes
  • Phase outdoor features
  • Work with design-build firms

KEY ARCHITECTURAL FEATURES

  • Open Floor Plan: Seamless connection between living, dining, and kitchen
  • Ceiling Design: 10’–12’ ceilings enhance spaciousness
  • Natural Lighting: Large windows throughout
  • Outdoor Living: Multiple patios and porches
  • Garage Functionality: 3-car garage with direct access
  • Split Bedroom Layout: Privacy-focused design

FREQUENTLY ASKED QUESTIONS

1. What is the best feature of this house style?
The open layout combined with strong indoor-outdoor connectivity.

2. Is 3330 sq ft ideal for a 3 BHK home?
Yes, it offers generous space for comfort, storage, and flexibility.

3. What are the pros and cons of an open layout?
Pros: Spacious feel, better interaction
Cons: Less privacy, noise spread

4. How long does construction take?
Typically 8–14 months depending on location and complexity.

Follow us on Facebook for recent videos


This Modern Farmhouse 3 BHK house plan (3330 sq ft) delivers a well-balanced combination of elegance, efficiency, and practicality. With its smart zoning, spacious interiors, and inviting outdoor areas, it’s ideal for modern families seeking both comfort and style. If you’re looking for a functional yet visually appealing home design, this plan offers excellent long-term value, both in lifestyle and investment.

Previous Article

3 BHK Modern Ranch House – 3528 Sq Ft Design with Covered Patio & Open Living Layout

Write a Comment

Leave a Comment

Your email address will not be published. Required fields are marked *

Subscribe to Mission Dream House

Subscribe to Mission Dream House’s newsletter and get the latest home design tips, house plans, and more, delivered directly to your inbox.
Mission Dream House 🏡