Choosing the right modern family home design goes beyond aesthetics; it’s about achieving the perfect balance between functionality, comfort, and sustainability. In today’s market, families are seeking homes that not only meet their lifestyle needs but also offer long-term value. This article explores the design features of a 4-bedroom 2-story transitional house, equipped with dual laundry rooms, a modern open-concept living space, and innovative storage solutions, making it ideal for large families or anyone who enjoys spacious living.
Whether you’re actively searching for your dream home or simply gathering ideas for future design projects, this comprehensive guide to a modern home layout offers insights into how functional spaces, sustainable materials, and luxury finishes can be seamlessly integrated into a beautiful and practical family home.
Overview of a Modern Family Home Design
The 4-bedroom transitional house is a prime example of how contemporary and traditional architectural elements can merge. This design features a sophisticated blend of stone, brick, and natural wood accents to create an exterior that stands out in any neighborhood. The use of large windows and glass doors ensures that natural light floods the interiors, making the home feel spacious and open while maintaining privacy and security for its residents.
This modern family home design is thoughtfully structured to maximize living space and minimize wasted square footage. Whether you’re looking for a functional family home or simply want an aesthetic that reflects modern living, this layout offers the best of both worlds. The design also incorporates energy-efficient materials and sustainable practices, contributing to a smaller carbon footprint.
Architectural Features

Open Concept Living
One of the defining features of this house is its open-concept layout, designed to facilitate modern living. The living room, dining room, and kitchen are all connected in one flowing, cohesive space. This design encourages family interaction while providing an ideal space for entertaining guests. The large windows throughout the main floor provide abundant natural light and stunning views of the surrounding landscape.
-
Living Room: A spacious and welcoming area, perfect for family gatherings, movie nights, or simply relaxing after a long day. The living room’s open design flows seamlessly into the dining and kitchen areas, creating a perfect setup for hosting guests.
-
Kitchen and Dining: The kitchen features high-end appliances, ample counter space, and storage options like custom cabinetry. The open kitchen layout ensures that the chef of the house can interact with family and guests while preparing meals. The dining area, located adjacent to the kitchen, is spacious enough to accommodate a large dining table, making it ideal for both everyday meals and formal gatherings.
Multifunctional Rooms and Storage Solutions
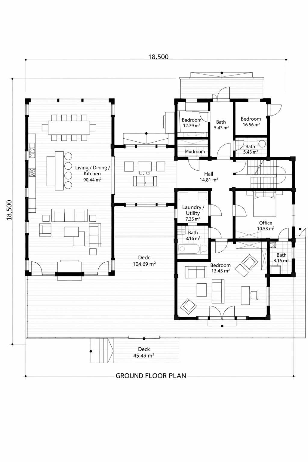
The floor plan of this 5-bedroom home is designed for maximum efficiency, especially in terms of storage. The home includes dual laundry rooms, one on the ground floor and one on the first floor, which helps families manage laundry chores without having to carry clothes from one floor to another. The mudroom near the garage is perfect for storing coats, shoes, and outdoor gear, while the office space provides a quiet environment for remote work or study.
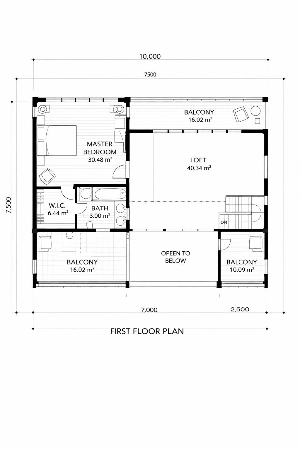
Additionally, the master suite includes a walk-in closet and an ensuite bathroom, offering privacy and plenty of space for personal belongings. The layout of the second floor also includes spacious bedrooms with ample closet space, ensuring that each family member has their own comfortable space in the modern family home.
Outdoor Living and Landscaping

A key feature of this transitional home design is its seamless connection to outdoor living spaces. The front and rear porches are designed for maximum enjoyment of the outdoors, providing an ideal space for relaxing with family, hosting summer parties, or enjoying a quiet evening. The backyard patio leads into a large garden area, which can be landscaped with plants, flowers, and shrubs to create a serene environment.
The garden pathways guide guests through the yard, creating an inviting atmosphere that complements the modern design of the house. This thoughtful integration of indoor and outdoor spaces makes the home ideal for those who enjoy spending time outdoors and make you feel like your dream house.
Exterior Design and Key Features

The exterior design of this 5-bedroom home blends modern aesthetics with timeless, classic elements. Here are some of the key features that make the house stand out:
-
Materials: A blend of brick and stone on the facade creates a striking visual contrast while ensuring durability and low maintenance.
-
Roof Style: The slanted roof design adds elegance and ensures efficient water drainage. The choice of materials and angles not only enhances the curb appeal but also improves the home’s overall energy efficiency.
-
Large Windows: Strategically placed windows throughout the home provide natural lighting while maintaining privacy. These windows are not only aesthetically pleasing but also energy-efficient, helping to reduce the home’s reliance on artificial lighting.
-
Exterior Lighting: The home’s exterior is highlighted by subtle lighting, which accentuates the architectural design and creates a warm, welcoming atmosphere in the evenings.
Floor Plan Design and Breakdown
The floor plan of this 5-bedroom house is designed with both practicality and luxury in mind. With plenty of living space, dual laundry rooms, and flexible rooms that can serve as guest bedrooms, a home office, or additional storage, this home offers everything a modern family home needs.
Ground Floor Layout:

-
Living Room: Spacious and perfect for family gatherings or entertaining guests. Large windows and a central layout allow for seamless flow into the dining and kitchen areas.
-
Kitchen and Dining Area: The kitchen is designed for efficiency, with modern appliances, plenty of storage, and an open layout. The dining room is located right next to the kitchen, making it easy to serve meals and socialize.
-
Mudroom and Laundry Room: The mudroom is conveniently located near the garage to store shoes, jackets, and bags before entering the main living areas. The laundry room is located close by for ease of use.
-
Powder Room: A small but essential guest bathroom located near the front entrance.
-
Garage: The two-car garage includes additional storage space for tools, bikes, or seasonal equipment.
First Floor Layout:

-
Master Suite: This luxurious bedroom features ample space, a walk-in closet, and an ensuite bathroom. The ensuite includes dual sinks, a bathtub, and a separate shower for ultimate comfort.
-
Bedrooms 1-3: These rooms are versatile, ideal for children, guests, or even as home offices.
-
Second Laundry Room: Located on the first floor for easy access, especially for busy families.
Breakdown of the Floor Plan
| Room | Dimensions | Floor | Notes |
|---|---|---|---|
| Master Bedroom | 17’ x 15’ | First Floor | Walk-in closet and ensuite bath |
| Bedroom 1 | 12’ x 12’ | First Floor | Guest or children’s room |
| Bedroom 2 | 12’ x 11’ | First Floor | Guest or children’s room |
| Living Room | 18’ x 17’ | Ground Floor | Spacious and open-concept |
| Kitchen | 14’ x 12’ | Ground Floor | Open layout with modern features |
| Dining Room | 13’6” x 12’ | Ground Floor | Adjacent to kitchen |
| Mudroom | 8’ x 5’ | Ground Floor | Storage for shoes and coats |
| Garage | 22’ x 21’ | Ground Floor | Two-car garage with storage |
Price Estimation for the USA
The price range for this modern family home with 5-bedroom is typically between $500,000 and $800,000 in the USA, depending on location, materials, and customizations. Homes in suburban or rural areas are generally less expensive, while properties in urban centers or high-demand areas such as Austin, Texas, or California suburbs can be at the higher end of this price range.
Follow us on Facebook for recent videos.
This 5-bedroom 2-story modern family home offers the perfect balance of modern design, efficiency, and luxury. With its open-concept living, dual laundry rooms, and ample storage space, it’s ideal for large families or those who appreciate the comfort and functionality of a well-designed home. From its beautiful outdoor spaces to its spacious interior, this house is a true testament to thoughtful architectural planning.
Whether you’re looking to invest in a new home or simply gather inspiration for your dream home, this modern transitional house design has something to offer. With its timeless appeal and functionality, this home will continue to meet the needs of its residents for years to come.